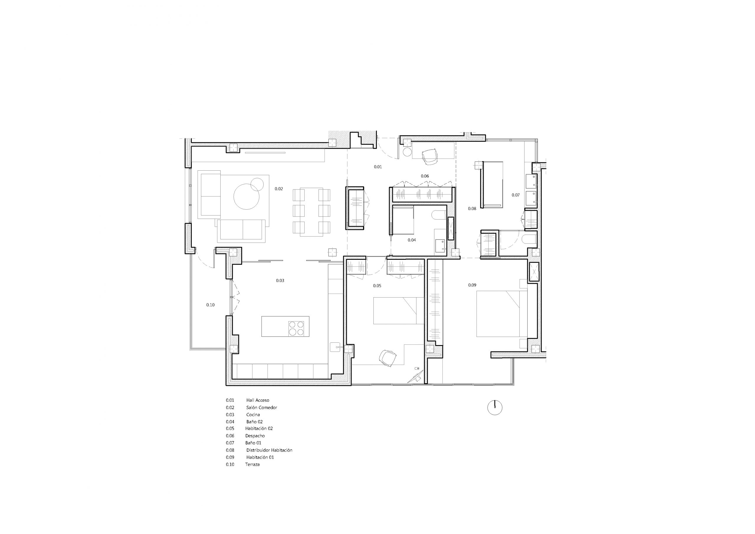
Este proyecto aborda la transformación integral de una vivienda en un edificio colectivo, con el objetivo de generar un espacio funcional y contemporáneo. La propuesta gira en torno a una distribución renovada que optimiza la relación entre las zonas comunes y privadas, potenciando la luz natural, la fluidez espacial y la calidad material.

La zona de día se plantea como un espacio abierto que integra salón, comedor y cocina, enmarcado por grandes ventanales que inundan el interior de luz. La paleta de materiales —madera natural, superficies neutras y elementos estructurales vistos— refuerza una atmósfera cálida y acogedora, a la vez que sobria y elegante.

La intervención apuesta por una arquitectura interior depurada, con elementos funcionales como tabiques ligeros de vidrio que permiten una separación sutil sin renunciar a la continuidad visual. La zona de noche, más recogida, incluye dos dormitorios y dos baños. El baño privado  destaca por su diseño limpio y contemporáneo, en el que la ducha exenta se convierte en una pieza central, aportando carácter y sofisticación al conjunto.

El resultado es una vivienda luminosa, bien articulada y pensada para habitar con calma, donde cada decisión proyectual responde a un equilibrio entre estética, confort y funcionalidad.

  • Ubicación

    Paseo Isabel la Católica Nº28. Valladolid

  • Año de Finalizacion

    En proceso

  • Superficie

    129 m2

  • Categoria

    Reforma Integral de Vivienda