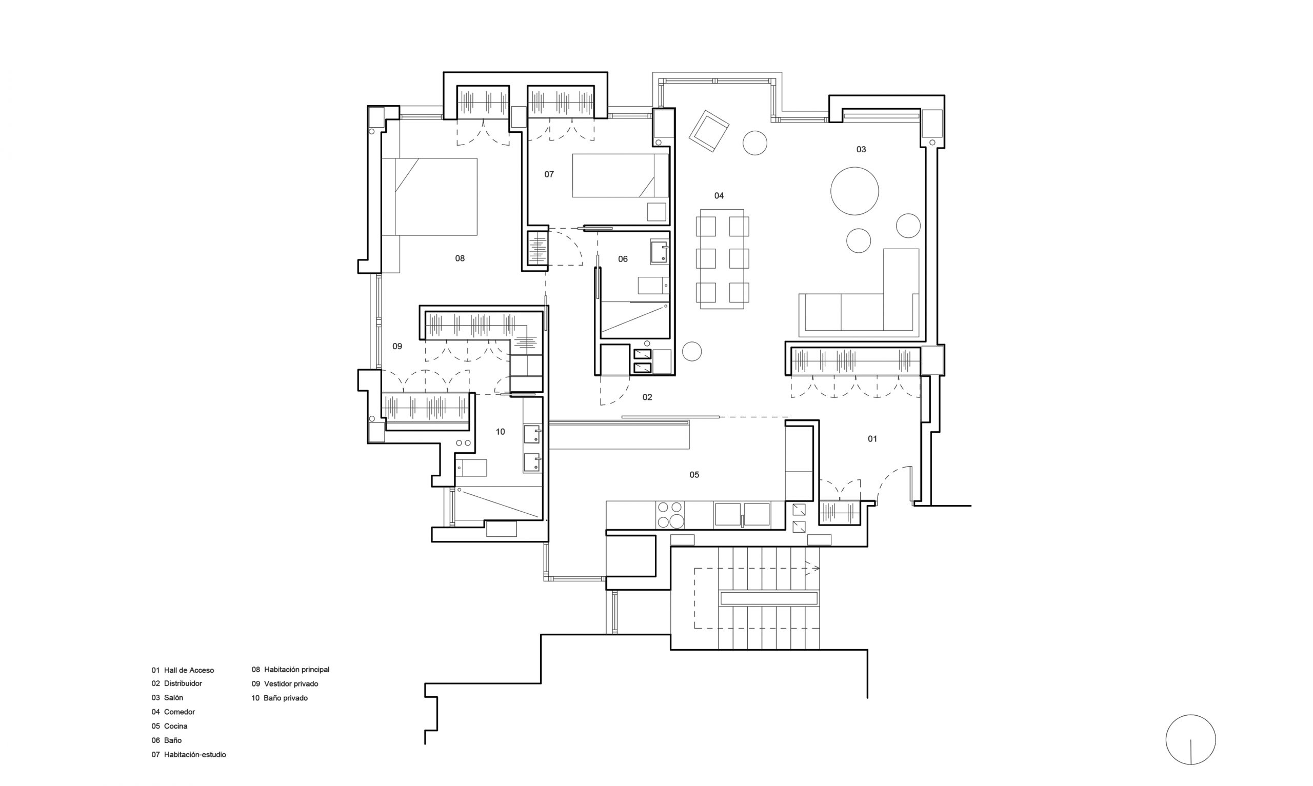
La reforma, de pequeña escala, nos ha permitido pensar sobre lo esencial de una vivienda, potenciando factores como la sencillez, la limpieza de los espacios intervenidos y la luminosidad.

Se conforman  armarios  ocultos como si de paneles continuos se tratasen que, además, permiten  compartimentar  la vivienda.

Los materiales principales usados son: acero lacado en negro y madera DM lacada en blanco liso.

  • Ubicación

    C/ Profesor Adolfo Miaja de la Muela, Nº6. Valladolid

  • Año de Finalizacion

    2019

  • Superficie

    97 m2

  • Fotografia

    Cesar Sanmaniego

  • Categoria

    Reforma Integral