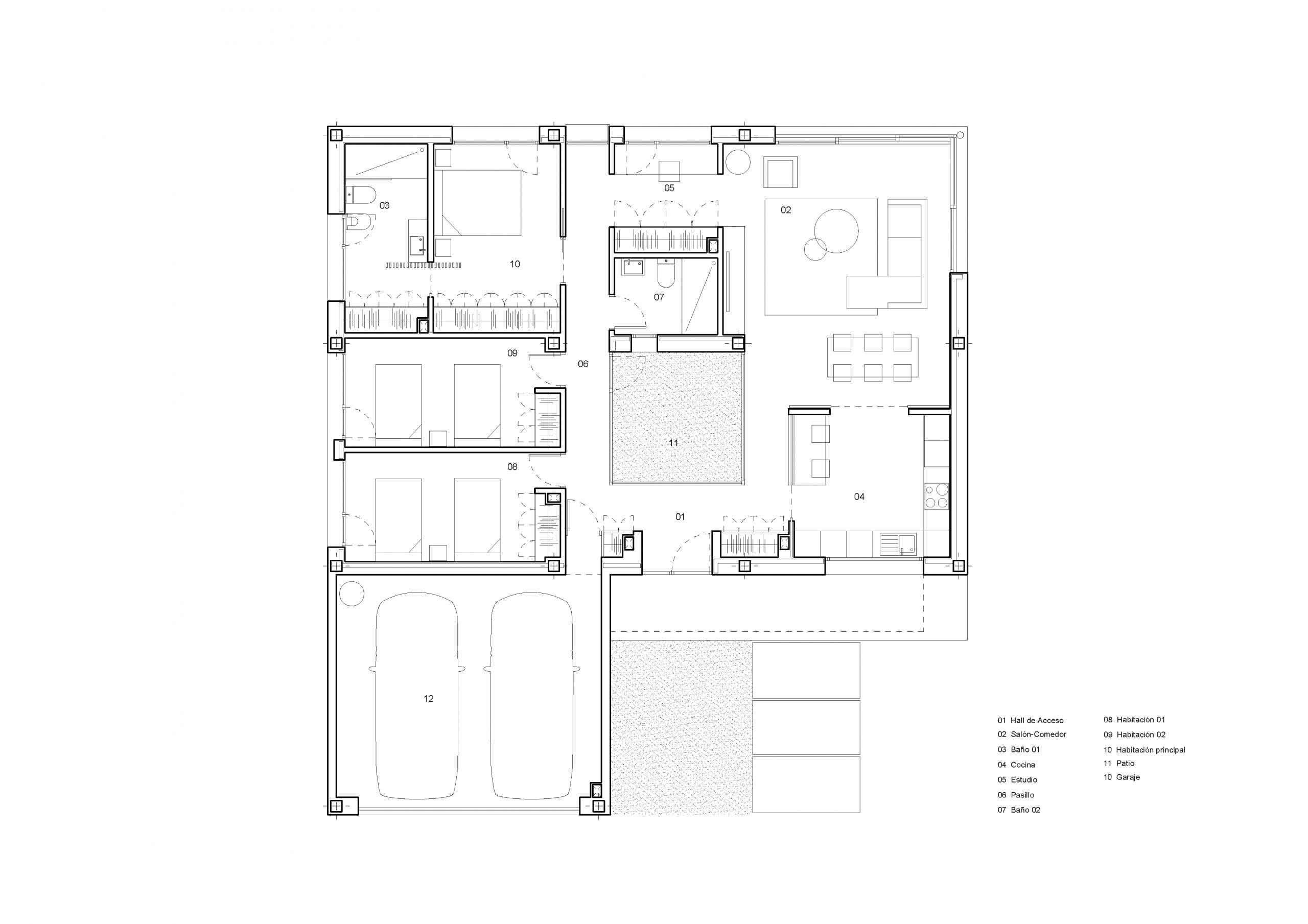
Proyecto de nueva construcción cuya distribución se realiza entorno a un patio central que articula las estancias y permite la división de las mismas en zona de día y de noche.

El rasgo más característico que hace especial a esta vivienda, es la doble circulación que se genera entorno al patio interior, el cual permite conectar ambas zonas de la casa desde distintos puntos, facilitando los recorridos y el acceso a las distintas áreas.

En los acabados resolvemos hasta el más mínimo detalle, combinando los colores y las texturas de tal forma que se genere un ambiente cálido y hogareño tanto en el interior como hacia el exterior.

  • Ubicación

    C/ Infanta Cristina, Nº31. Villanueva de Duero (Valladolid)

  • Año de Finalización

    2022

  • Superficie

    170 m2

  • Fotografía

    Foveon Producciones

  • Categoría

    Obra Nueva