Esta clínica dental emerge como resultado de la audaz reforma de un local de geometría estrecha y alargada. El desafío arquitectónico impulsó la creación de un espacio interior diáfano y holgado, donde la configuración se convierte en una serie de volúmenes cuidadosamente dispuestos.

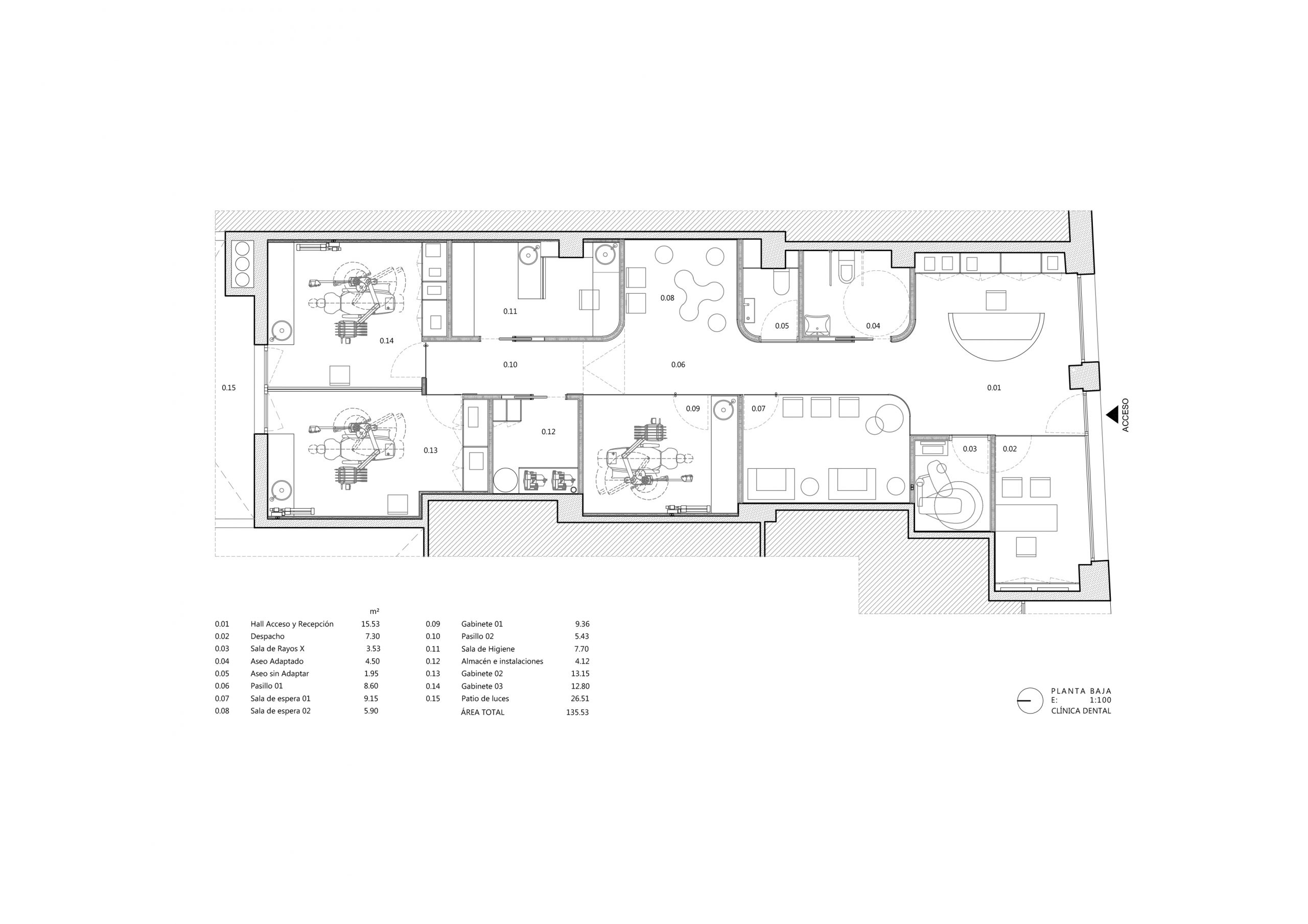
El primer volumen, ubicado en el acceso, alberga el despacho y la sala de rayos X. Este, combinado con el segundo en la medianera opuesta, da forma al primer espacio diáfano, destinado a la recepción. El segundo volumen, a su vez, en combinación con el tercero, que alberga el primer gabinete clínico y se encuentra en el lado opuesto, estructura el espacio en dos salas de espera distintas a ambos lados. Este juego de llenos y vacíos se despliega a lo largo del recorrido hasta llegar al distribuidor principal, donde se encuentran el resto de las estancias.

El volumen central, que alberga los aseos, destaca en el entorno no solo por sus esquinas redondeadas que suavizan el recorrido, sino también por su distintiva materialidad. Aunque se resuelve con el mismo sistema de tabiques de placas de yeso laminado, su acabado chapado en roble aporta calidez y resalta sobre el espacio blanco. Este volumen llamativo sirve como lienzo para el rótulo de la clínica, visible incluso desde el exterior gracias a la colocación estratégica de los vidrios.

En lo que respecta a la iluminación, se ha considerado tanto la luz natural como la artificial para realzar cada elemento clave. Dada la forma alargada del local, se aprovecha la distribución de las estancias en las medianeras para permitir que la luz natural inunde el espacio de manera directa y recta desde ambos extremos.